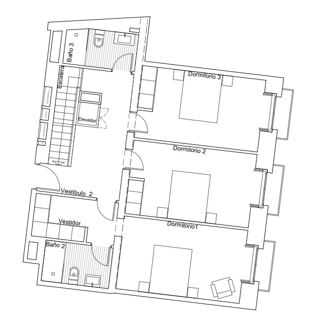
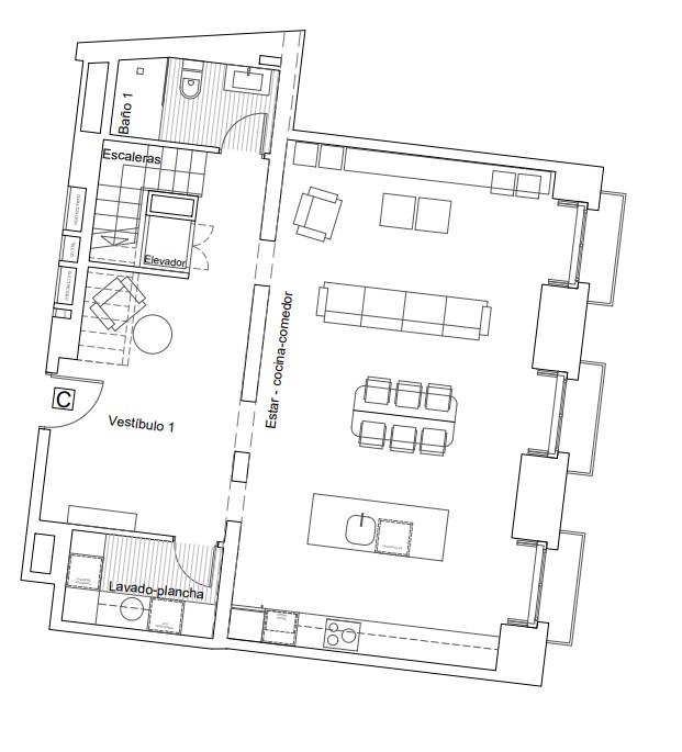
Eleva la exclusividad al separar totalmente los ambientes mediante una escalera y su propio ascensor interno privado:
Planta Social: Un espacio diáfano de dimensiones impresionantes que integra salón, comedor y cocina, complementado con un cuarto de lavado y un baño completo.
Planta Privada: 3 dormitorios dobles, destacando la suite principal con un extenso vestidor independiente y baño privado, además de un segundo baño para el resto de habitaciones.
Es la joya de la corona del edificio, diseñada para quienes buscan la máxima independencia y comodidad en pleno centro histórico.