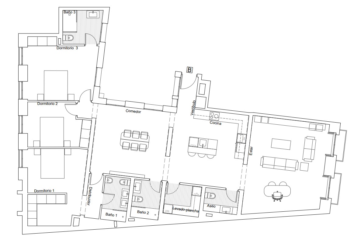
Distribución Social: Presenta una amplia zona central que integra comedor, cocina con isla y salón (estar) en un único ambiente continuo y fluido.
Zona de Noche: Dispone de 3 dormitorios (2 en Suite) situados en el ala lateral del inmueble para mayor privacidad.
Baños y Servicios: Cuenta con 3 baños completos (dos de ellos en suite) y un aseo de cortesía adicional junto al cuarto de lavado-plancha.
Es un hogar que prioriza los espacios comunes amplios sin sacrificar el equipamiento completo de una vivienda de lujo.