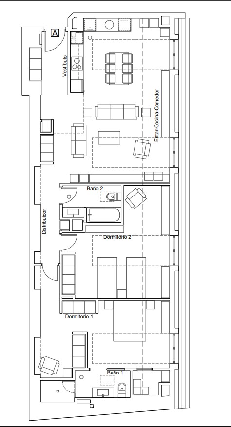
2 Dormitorios:
Dormitorio 1 (Principal): Es en suite, con el Baño 1 integrado de forma privada al fondo de la estancia.
Dormitorio 2: No es en suite; utiliza el Baño 2 (con bañera), situado en el pasillo distribuidor.
Zona Social: Un único espacio diáfano de Estar-Cocina-Comedor que ocupa todo el frente de la vivienda junto al vestíbulo.
Distribución: El acceso se realiza por un lateral, conectando directamente con el área social y separando la zona de descanso mediante un pasillo distribuidor.
Es una opción más recogida, con 2 dormitorios y 2 baños, ideal para quienes buscan eficiencia espacial en el mismo edificio.